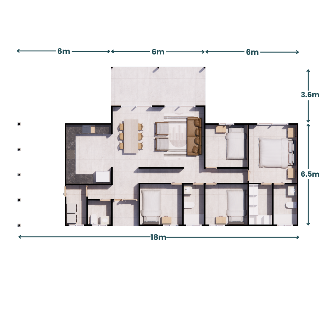
VALDIVIA 120m2
MODELO VALDIVIA de 120 m² 🌲
¿QUÉ CONSIDERA EL KIT OBRA GRUESA?
1- MATERIALES INICIALES:
Muros Exteriores: Paneles SIP OSB APA 114 mm
Muros Interiores: Paneles SIP OSB APA 114 mm
Techumbre : Paneles SIP OSB APA 160 mm
Tornillo 6 x 1 5/8 (formato caja 100un)
Tornillo 8 x 3 (formato caja 100un)
Turbo 6,4¨ (formato caja 100un)
Turbo 7,2¨(formato caja 100un)
Pernos de Anclaje
Membrana Hidrófuga Eco Wrap (rollo 75m2)
Espuma poliuretano (formato caja 12un)
2- PLANOS DE ARQUITECTURA:
Planta de Arquitectura (todos los pisos)
Elevaciones (Norte, Sur, Oriente y Poniente)
Plano de Superficie.
Esquema de propuesta Radier o Pilotes (tipo)
Planos de propuestas eléctricas.
Planos de propuestas sanitarias.
Plano de propuesta de estructura vigas.
Planos de propuesta de cerchas en acero galvanizado.
3- PLANOS DE MONTAJE:
Planta de panelización.
Elevaciones de todos los muros panelizados.
Plano de Techumbre panelizado.
Plano de Piso panelizado (si considera)
Detalles constructivos y de armado.
¡PUEDES AÑADIR!
1- MADERAS:
Pino 2×4″ Cepillado impregnado, para unión de muros exteriores e interiores.
Pino 2×5″ Cepillado impregnado, para unión de techumbre.
Vigas Pino Oregon 2×6″ para vigas a la vista interior y exterior
Pilares Pino Oregón 4×4″ para exterior.
2- LOSA SIP:
Paneles SIP OSB APA 160mm + complementos.
3- CERCHAS:
Fabricación de Cerchas en vulcometal según plano de cerchas.
Fabricación de Cerchas de Pino Oregón según plano de cerchas (si tu proyecto considera)
4- MODIFICACIONES:
Modificación de Arquitectura. Puedes mover muros, agrandar o achicar los m2 de este kit.
¡ENVIAMOS TU KIT VALDIVIA CON TODO ESTO Y MÁS!…
| Baños |
3 |
|---|





Kit Autoconstrucción
MODELOS PREMIUM
MODELOS ESTANDAR
PANELES SIP
PANEL SIP APA PROTEC
PANEL SIP LP PAÍS
PANEL SIP SMARTPANEL
PANEL SIP TECHSHIELD
PANEL SIP TERCIADO
PANEL SIP YESO CARTÓN
PANEL SIP IMPORTADO
MATERIALES DE CONSTRUCCIÓN
PLANCHAS OSB
COMPLEMENTOS PANEL SIP
LETICIA VERA CARRASCO –
me gustaría saber el valor kit full con todo…precio
además cuanto sale puesta en la comuna de Llay-Llay quinta región y por último saber si cuentan con servicio de: Visita técnica previa a la compra y si cuentan con servicio de armado!!!!!
MUY BONITA
IDEAL QUE TUVIERA 5 DORMITORIOS
Gerente de la tienda admin_box –
Hola Ramón, buen día.
Gracias por tomar contacto con Box Panel Chile.
Para esto y conocer más de nuestros proyectos y servicios, te aprece si nos comunicamos directamente? Te dejo número de contacto:+56 9 8350 6557.
Arquitectos y Asesores estaremos encantados en colaborar en lo que necesites y entregarte una cotización formal.
Quedamos atentos.
Saludos.